3 1

3 bed End Terrace House - Let
Potterne, Devizes
£1,250pcm

A pretty 3 double bedroom cottage brimming with beam and period features. Situated in the village of Potterne, close to Devizes. Garden and on street parking. EPC E. Available mid April 2026.

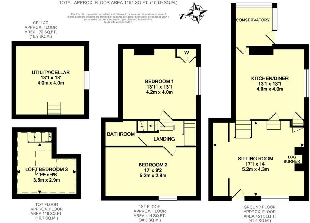
Situated on the High Street in Potterne is this well proportioned period cottage. Step into the house and into the living room complete with beams and a wood burner and built in bookcases.

Step down into the cellar which offers great storage as well as the location for washing machine, tumble dryer and additional fridge/freezer space.

Step up into the cottage kitchen with a good range of units, range cooker, Belfast Sink and dishwasher. Adjacent to the kitchen is a small conservatory leading to the rear of the property and the garden.

To the first floor are two double bedrooms. The master has extensive built in wardrobe space. There is also a modern shower room on this level.

On the top floor is the third attic bedroom which is also a double.

To the rear is a well stocked garden and patio area perfect for sundowners and summer bbq's.

On Street Parking and Electric Heating throughout.

EPC E. Council Tax Band D

Potterne is a small village on the outskirts of Devizes close to Salisbury Plain. There is a thriving local pub and a convenience shop. The Market town of Devizes offers a range of independant shops, eateries and cafe's as well as a cinema.

This tenancy is for 12 months only.
Floorplans For Potterne, Devizes
EPC For Potterne, Devizes
Arrange a viewing for Potterne, Devizes

For further details on this property please call us on:
01249 716333

Register Your Interest