2 2

2 bed First Floor Flat - Let Agreed
Wadswick Green, Corsham
£1,650pcm

A very rare opportunity to rent a two bedroom first floor apartment situated at the award winning Retirement Village Wadswick Green, exclusively for the over 60's. Allocated Parking.

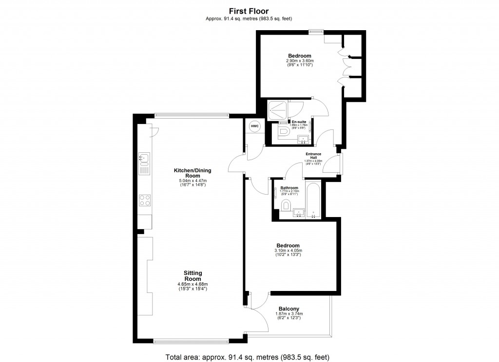
The beautifully presented apartment features a welcoming hallway entrance that leads into the open plan kitchen/dining sitting room space. The kitchen has a range of modern units and integral appliances including fridge freezer, washing machine, dishwasher and microwave. There is a split level oven and work top hob. A handy kitchen island and space for a dining table and chairs completes the room. The living area has floor to ceiling windows letting in plenty of light and is very spacious. A door leads on to your private balcony where you can watch the world go by and enjoy the green aspect and communal gardens.

Lift access to all floors.

Leading off the hallway are the two double bedrooms. The master has floor to ceiling wardrobes and an ensuite with walk in shower. The second double also has a door leading onto the balcony. In addition there is a bathroom with modern white suite and hand held shower over the bath.

Wadswick Green is situated a few miles from the historic village of Corsham. Set in acres of open parkland and beautiful well tended communal gardens the village also has a swimming pool, spa, hairdressers and a coffee shop and restaurant.

The nearby historic town of Corsham has many independent shops, restaurants, pubs and a small supermarket. It is close to Bath and has excellent transport links to both the M4 Corridor and the larger town of Chippenham with a fast train to London Paddington.

Council Tax Band E. Available May 2026
Floorplans For Wadswick Green, Corsham
EPC For Wadswick Green, Corsham
Arrange a viewing for Wadswick Green, Corsham

For further details on this property please call us on:
01249 716333

Register Your Interest